"Finne" - 800m from the sea

Large Image

1/35

"Finne" - 800m from the sea

Holiday village
4.0(7)

Property Type

Holiday village

Guests

8

Bedrooms

4

Bathrooms

2

IA

Hosted by Interhome A.

Member since October 2025

About this property

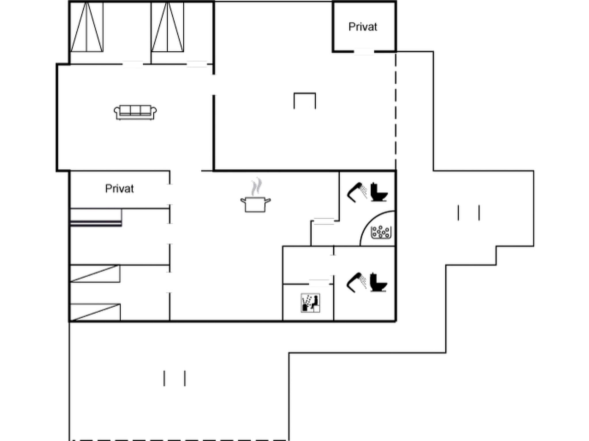
Single-family house, built in 1962. 800 m from the sea. Private: natural state property 1'962 m2. Outdoor shower, children's playground (slide, swing). In the house: sauna, trampoline, washing machine. Parking at the house. Grocery 800 m. Golf course 2.5 km. The owner does not accept any youth groups.
  • Kitchen

    • Dishwasher
    • Microwave
  • Health and Wellness

    • Sauna

Check availability

Past
Today
Booked
Available
SuMoTuWeThFrSa
SuMoTuWeThFrSa

Location

Meet the host

IA

Interhome A.

Member since October 2025

60078

Listings

Languages:

English

Services:

No services

Interhome's other listings

Important house rules & info

    $ 1124 /per night

    You won't be charged yet

    Report this listing