"Golubinka" - 500m from the sea

Large Image

1/37

"Golubinka" - 500m from the sea

Holiday village

Property Type

Holiday village

Guests

5

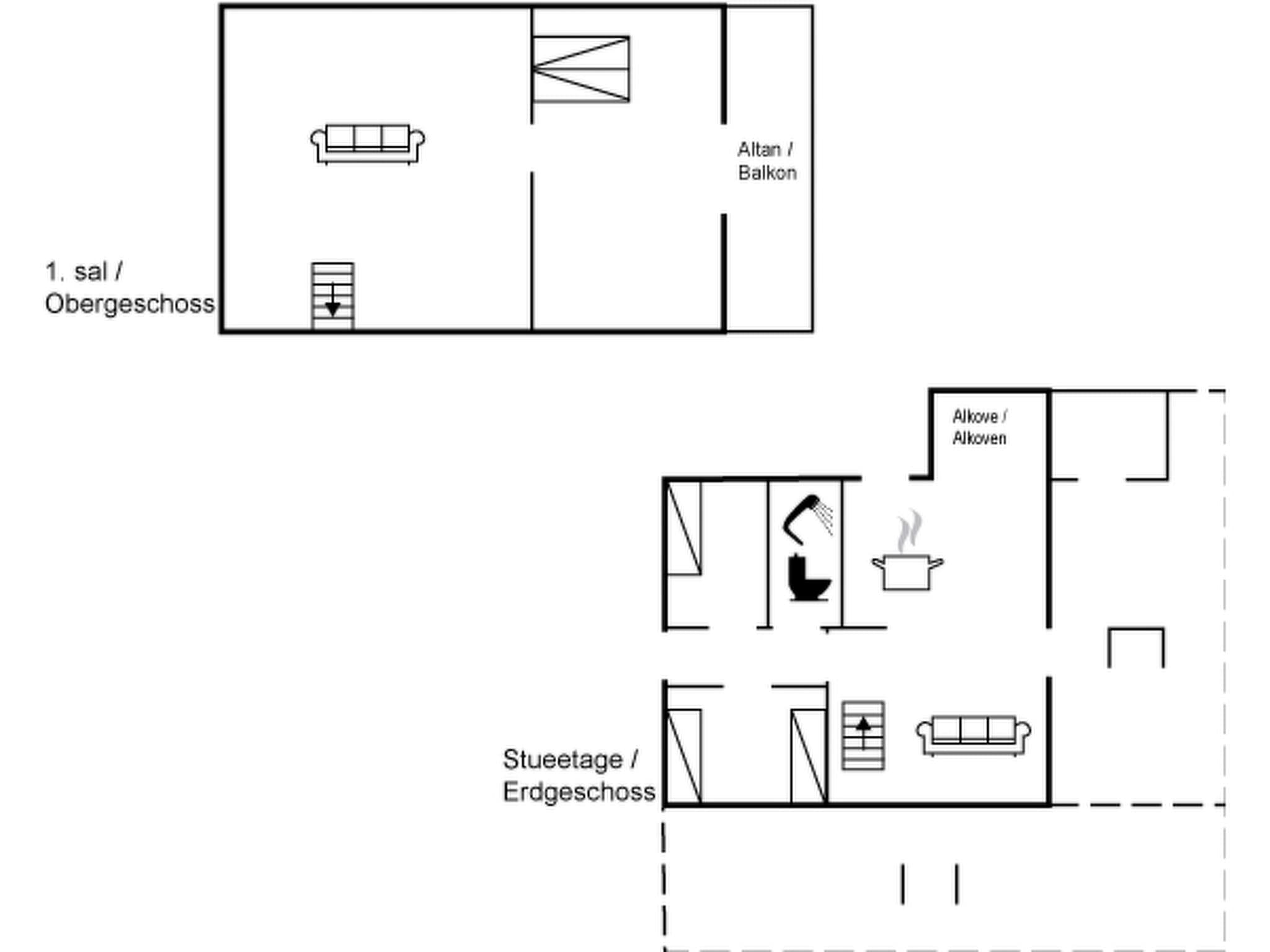
Bedrooms

3

Bathrooms

1

IA

Hosted by Interhome A.

Member since October 2025

About this property

Single-family house, built in 1977. 500 m from the sea. Private: natural state property 1'244 m2. Terrace (20 m2), barbecue, children's playground (swing). In the house: trampoline. Parking at the house. Grocery 3 km. The owner does not accept any youth groups.
  • Kitchen

    • Dishwasher
    • Microwave

Check availability

Past
Today
Booked
Available
SuMoTuWeThFrSa
SuMoTuWeThFrSa

Location

Meet the host

IA

Interhome A.

Member since October 2025

60078

Listings

Languages:

English

Services:

No services

Interhome's other listings

Important house rules & info

    $ 837 /per night

    You won't be charged yet

    Report this listing