"Pihla" - 150m from the sea

Large Image

1/27

"Pihla" - 150m from the sea

6 Guests
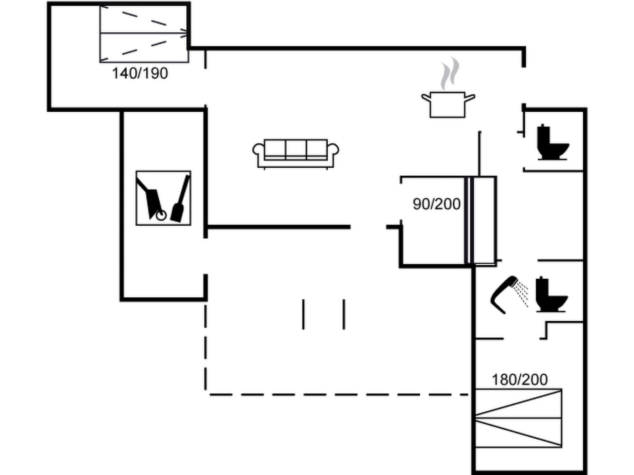
2 Bedrooms
1 Bathrooms
Holiday village
3.0
IA
Verified

Hosted by Interhome A.

Member since October 2025

About this property

Single-family house, built in 1963. 150 m from the sea. Private: property 2'698 m2. Barbecue. In the house: washing machine. Parking at the house. Grocery 3.5 km. The owner does not accept any youth groups.
  • Child-Friendly

    • Crib or playpen
    • Familyfriendly summer
  • Pet-Friendly

    • Pets max
    • Pet-friendly policy
  • Bedroom

    • Studio
    • Bed linens
  • Outdoor

    • BBQ grill
    • Deck or patio

Select check-in date

Minimum stay: 2 nights

SuMoTuWeThFrSa
SuMoTuWeThFrSa

Location

Meet the host

I

Hosted by Interhome Admin

Member since October 27, 2025

Property Types

  • Apartment/Hotel
  • Holiday village

Important house rules & info

Check In

Check in after 4:00 PM

Check Out

Check out before 10:00 AM

Children

Child friendly

Pets

Pets allowed

Damage & incidentals

You will be responsible for any damage to the rental property caused by you or your party during your stay.

Cancellation Policy

Interhome (Time-Based)

Guest can cancel and receive a refund based on how far in advance they cancel: up to 60 days before check-in - 90% refund, 59–29 days - 50% refund, 28–2 days - 20% refund, 1 day/same day or no-show - no refund.

More Info

Frequently asked questions

Nearby Properties

Do you have any special requests?